2026年03月27日 更新
詳細情報643
| 登録年月日 |
2026年3月27日 |
| 所在地 |
ひろしまけんあきたかたし こうだちょうしもおばら 広島県安芸高田市 甲田町下小原 |
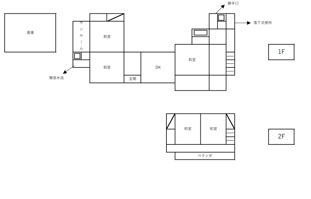
| 用途 | 居宅 |
| 構造 | 木造 5DK |
| 建築面積 |
76.9㎡(敷地317㎡) |
| 延床面積 |
116.56㎡ |
| 建築時期 | 昭和48(1973)年 |
| 売却又は賃貸の別 |
売却 |
| 価格・賃貸料の希望 |
100万円 |
| 飲用水 | 上水道 |
| 電気 | 中国電力 |
| ガス |
プロパンガス |
| トイレの排水設備 | 汲み取り(簡易水洗)・汲み取り(落下式便所) |
| 風呂の給湯設備 |
ー |
| 附帯物件 |
田1筆258㎡、その他(用悪水路68㎡、公衆用道路72㎡) |
| 附帯物件の条件 |
上記価格に含む |
| 備考 |
大修理不要(買主負担) 豪雨により床上浸水の履歴があります。 建物は未登記です。 現況渡し希望です。 |
|
お問い合わせ先 |
安芸高田市 企画部 政策企画課 電話番号 0826-42-5612 FAX 0826-42-4376 営業日 平日 営業時間 午前9時から午後5時まで ※空き家利用希望者登録をされている方からご連絡をいただきましたら、 空き家所有者に確認させていただき、交渉可能であれば、空き家所有者 の方の連絡先をお伝えします。内見の予約や交渉は双方で協議をお願い します。 |
【空き家情報バンクの注意事項】※
- 物件の購入等の決定にあたっては、お問い合わせ先にご連絡され、自身で実際に現地や物件の確認を行い、所有者や不動産業者等から十分に説明を受けて下さい。
- 登録物件の中には修繕が必要な物件や荷物が撤去されていない物件もあります。費用を売主(貸主)又は買主(借主)のどちらが負担するか説明を受けて、納得の上で契約をして下さい。
- 登録物件の中には、「土砂災害警戒区域」等にあたる物件も含まれています。ハザードマップ等で確認してください。
- 附帯物件として、農地(田や畑)を含む物件が登録されています。農地を売買又は賃貸する場合には、農業委員会の許可を受ける必要があり、農業委員会の許可を受けるには標準で1~2か月の時間を要します。また、農地について、賃貸の契約がされている場合があり、買主(借主)が、すぐに使用できない可能性があります。
※空き家情報バンクの一般的な共通事項のため、この物件が上記に該当するとは限りません。
お問い合わせ
企画部 政策企画課
窓口:安芸高田市役所 本庁第2庁舎 2階( 庁舎案内 )
FAX0826-42-4376